via buccari 1
30171 venezia (Italia)
+39 041 419 03 37
info@gi-f.com

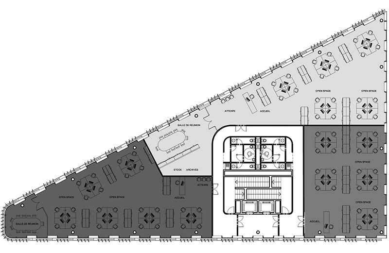
EDIFICIO PER UFFICI
OFFICE BUILDING


luogo/location: Lione (Francia) mappa/map
cliente/client: Ville de Lyon; Societé du Grand Lyon
consulenti/consultants: AS-Architecture Studio (architettura); Groupe Lazard (project managment); Groupe Quadri Plus (ingegneria); Eco Cites (computi)
superficie/gross surface: 6 300m²
importo opere/cost: 8,0M € IVA escl.
stato/phase: progetto preliminare
cronologia/timetable: 09.2006-12.2006


download PDF (it)
download PDF (en)
download PDF (fr)