via buccari 1
30171 venezia (Italia)
+39 041 419 03 37
info@gi-f.com

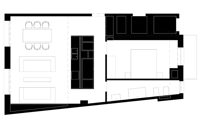
RISTRUTTURAZIONE DI UN APPARTAMENTO
APARTMENT RENOVATION


luogo/location: Milano (Italia) mappa/map
cliente/client: privato
superficie/gross surface: 70m²
importo opere/cost: nc
stato/phase: progetto preliminare
cronologia/timetable: 01.2016-03.2016


download PDF (it)
download PDF (en)
download PDF (fr)