via buccari 1
30171 venezia (Italia)
+39 041 419 03 37
info@gi-f.com

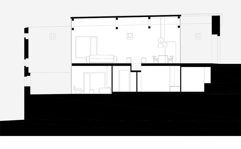
TRASFORMAZIONE DI UN GRANAIO IN CASA UNIFAMILIARE
OLD BARN RENOVATION


luogo/location: Chomaise (Francia) mappa/map
cliente/client: privato
superficie/gross surface: 450m²
importo opere/cost: 600K € IVA escl.
stato/phase: progetto preliminare
cronologia/timetable: 12.2015-03.2016
premi/awards: 2° PREMIO


download PDF (it)
download PDF (en)
download PDF (fr)