via buccari 1
30171 venezia (Italia)
+39 041 419 03 37
info@gi-f.com

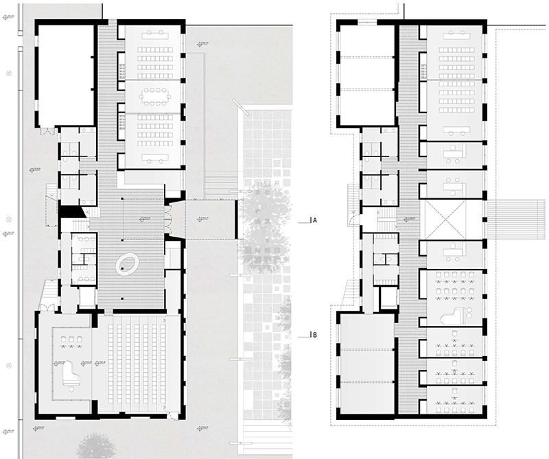
CASA DELLA CULTURA E SISTEMAZIONI ESTERNE
CULTURAL CENTER AND URBAN RENOVATION


luogo/location: Los Molinos (Spagna) mappa/map
cliente/client: Ayuntamiento de Los Molinos; COAM
superficie/gross surface: 1 200m² (casa della cultura); 3 200m² (sistemazioni esterne)
importo opere/cost: 1,0M € IVA escl.
stato/phase: concorso internazionale di progettazione
cronologia/timetable: 03.2018-06.2018


download PDF (it)
download PDF (en)
download PDF (fr)