via buccari 1
30171 venezia (Italia)
+39 041 419 03 37
info@gi-f.com

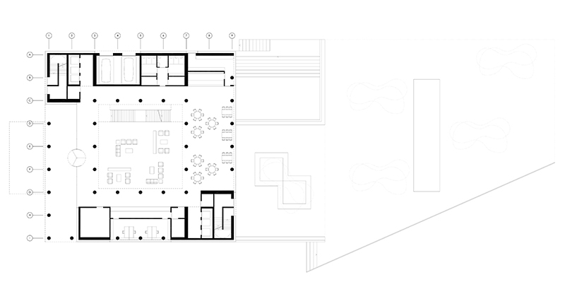
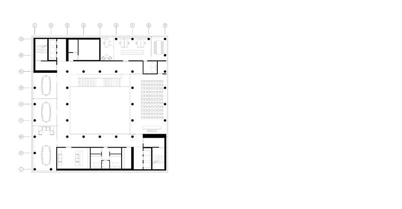
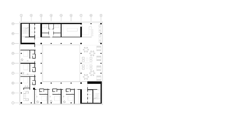
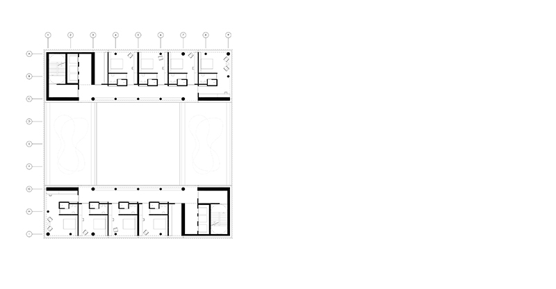
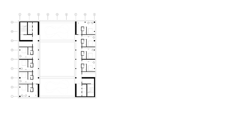
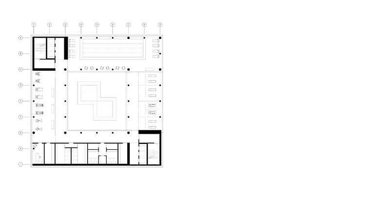
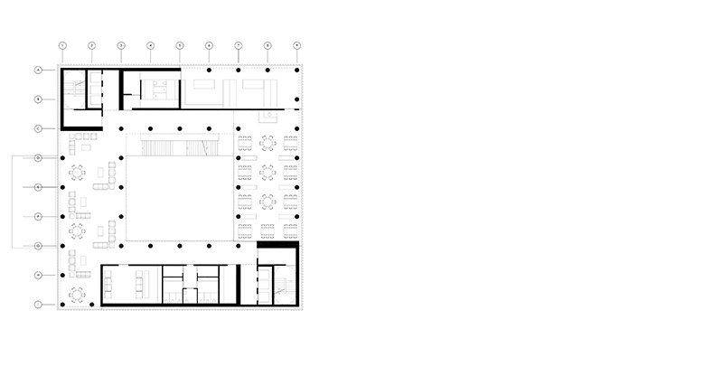
HOTEL
HIGH-RISE HOTEL


luogo/location: Xining, Qinghai (Rep. Pop. Cinese)
cliente/client: investitore privato
consulenti/consultants: Qinghai LDI (programmazione)
superficie/gross surface: 20 000m²
importo opere/cost: 58,0M € IVA escl.
stato/phase: studio di fattibilità
cronologia/timetable: 10.2018-11.2019


download PDF (it)
download PDF (en)
download PDF (fr)