via buccari 1
30171 venezia (Italia)
+39 041 419 03 37
info@gi-f.com

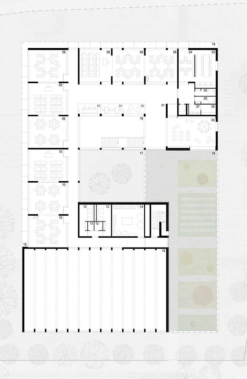
COMPLESSO SCOLASTICO CARRACCI
CARRACCI SCHOOL COMPLEX


luogo/location: Bologna (Italia) mappa/map
cliente/client: Comune di Bologna
consulenti/consultants: SINERGO Spa (ingegneria integrata); INTERNOESTERNO (visuals)
superficie/gross surface: 4 000m²
importo opere/cost: 4,8M € IVA escl.
stato/phase: progetto di fattibilità tecnico-economica
cronologia/timetable: 11.2018-04.2019
premi/awards: 3° PREMIO


download PDF (it)
download PDF (en)
download PDF (fr)