via buccari 1
30171 venezia (Italia)
+39 041 419 03 37
info@gi-f.com

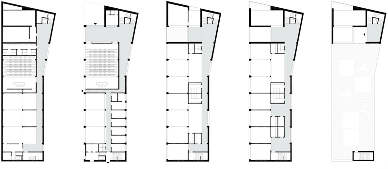
SCUOLA SECONDARIA DI PRIMO GRADO MANARA VALGIMIGLI
MANARA VALGIMIGLI SECONDARY SCHOOL


luogo/location: San Piero in Bagno (Italia) mappa/map
cliente/client: Comune di Bagno di Romagna (FC), Unione dei Comuni Valle del Savio
superficie/gross surface: 3 300m²
importo opere/cost: 3,35M € IVA escl.
stato/phase: concorso internazionale
cronologia/timetable: 12.2018-02.2019


download PDF (it)
download PDF (en)
download PDF (fr)