via buccari 1
30171 venezia (Italia)
+39 041 419 03 37
info@gi-f.com

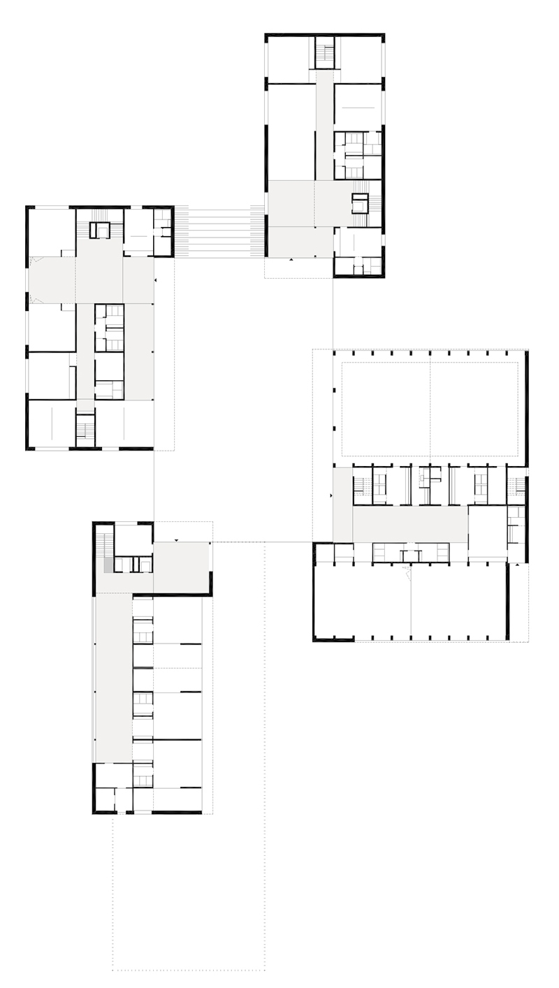
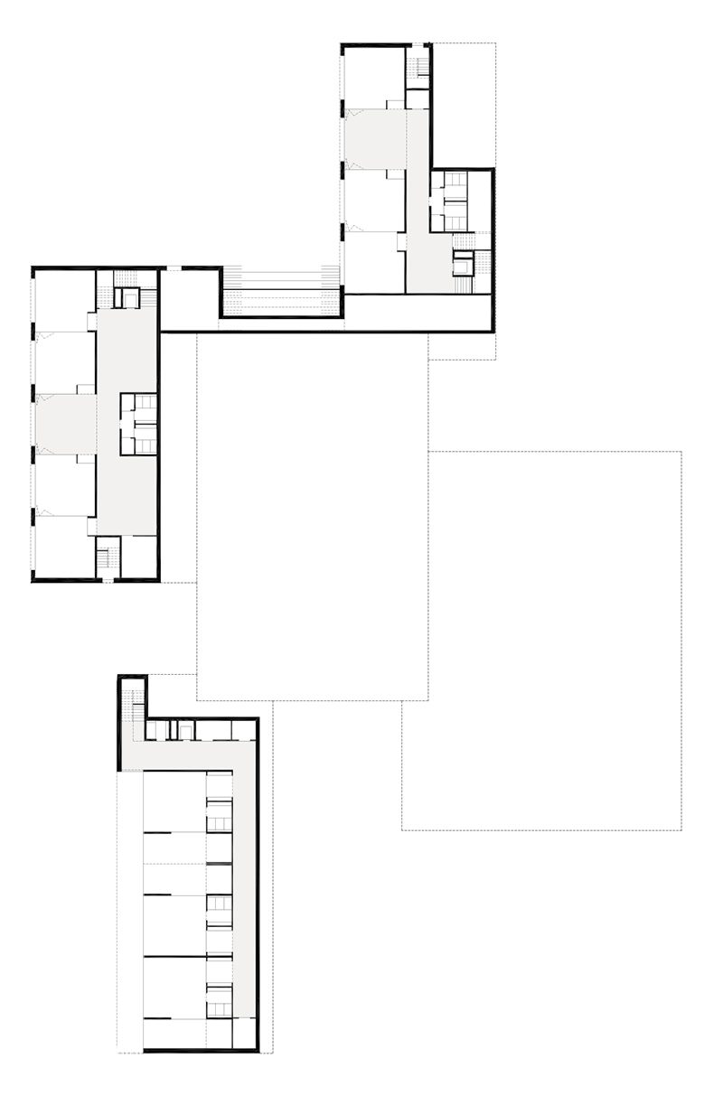
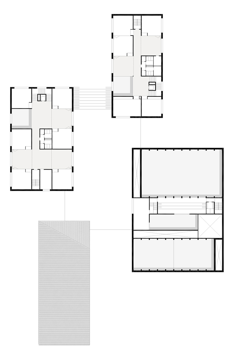
POLO SCOLASTICO SANT'ANNA E SISTEMAZIONI ESTERNE
SANT'ANNA SCHOOL COMPLEX AND URBAN DESIGN


luogo/location: Bevagna (Italia) mappa/map
cliente/client: Comune di Bevagna (PG)
in collaborazione con: Enrico Robazza Architetto; UBU (visuals)
superficie/gross surface: 1 200m² (scuola secondaria di I grado); 1 420m² (scuola primaria); 960m² (scuola materna); 1 070m² (mensa-auditorium-palestra)
importo opere/cost: 1,43M € IVA escl. (scuola secondaria di I grado); 1,6M € IVA escl. (scuola primaria); 1,04M € IVA escl. (scuola materna);
1,11M € IVA escl. (mensa-auditorium-palestra)
stato/phase: concorso internazionale di progettazione
cronologia/timetable: 03.2020-07.2020


download PDF (it)
download PDF (en)
download PDF (fr)