via buccari 1
30171 venezia (Italia)
+39 041 419 03 37 
info@gi-f.com
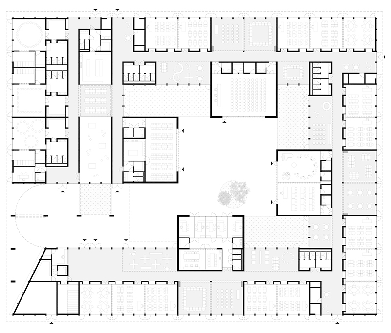
POLO SCOLASTICO METATO E SISTEMAZIONE AREE ESTERNE
METATO SCHOOL COMPLEX
luogo/location: San Giuliano Terme (Italia)  mappa/map
cliente/client: Comune di San Giuliano Terme (PI)
consulenti/consultants: WOODCAPE (strutture in X-Lam); UBU (visuals)
superficie/gross surface: 3 600m²
importo opere/cost: 4,42M € IVA escl.
stato/phase: studio di fattibilità tecnico-economica
cronologia/timetable: 10.2021-02.2022
premi/awards: 5° PREMIO
 download PDF (it)
 download PDF (en)
 download PDF (fr)
 
 
 
 
 
 
 
 
 
 
 
