via buccari 1
30171 venezia (Italia)
+39 041 419 03 37
info@gi-f.com

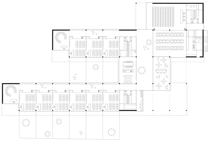
SCUOLA PRIMARIA ALDA COSTA
ALDA COSTA PRIMARY SCHOOL


luogo/location: Ferrara (Italia) mappa/map
cliente/client: Comune di Ferrara
in collaborazione con/in partnership with: Architetto Mattia Marzaro
consulenti/consultants: UVA Associati (strutture e sicurezza); BOSCOLO-GUIDA (impianti); G&T (geologia); UBU (visuals)
superficie/gross surface: 1 430m²
importo opere/cost: 2,45M € IVA escl.
stato/phase: concorso internazionale di progettazione
cronologia/timetable: 06.2022-08.2022


download PDF (it)
download PDF (en)
download PDF (fr)