via buccari 1
30171 venezia (Italia)
+39 041 419 03 37
info@gi-f.com

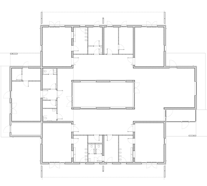
ASILO NIDO
KINDERGARTEN


luogo/location: Santa Maria di Sala (Italia) mappa/map
cliente/client: Comune di Santa Maria di Sala (VE)
in collaborazione con/in partnership with: SINERGO SpA
consulenti/consultants: SINERGO (impianti meccanici, sicurezza, antincendio); IBZ (strutture); STUDIO ALPHA (impianti elettrici)
superficie/gross surface: 610m²
importo opere/cost: 1,68M € IVA escl.
stato/phase: progetto definitivo, progetto esecutivo
cronologia/timetable: 10.2022-05.2023


download PDF (it)
download PDF (en)
download PDF (fr)