via buccari 1
30171 venezia (Italia)
+39 041 419 03 37
info@gi-f.com

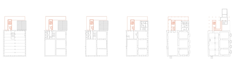
NUOVO COLLEGAMENTO VERTICALE ESTERNO PER IL TORRIONE DEGLI SPAGNOLI
FOYER AND VERTICAL CORE FOR TORRIONE DEGLI SPAGNOLI


luogo/location: Carpi (Italia) mappa/map
cliente/client: Comune di Carpi (MO)
consulenti/consultants: UBU (visuals)
superficie/gross surface: 250m²
importo opere/cost: 430K € IVA escl.
stato/phase: concorso di progettazione
cronologia/timetable: 09.2023-11.2023


download PDF (it)
download PDF (en)
download PDF (fr)