via buccari 1
30171 venezia (Italia)
+39 041 419 03 37
info@gi-f.com

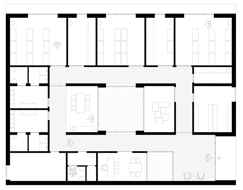
GATTILE COMUNALE
MUNICIPAL CATTERY


luogo/location: Venezia (Italia) mappa/map
cliente/client: Comune di Venezia
in collaborazione con/in partnership with: SINERGO SpA
consulenti/consultants: SINERGO (impianti meccanici, sicurezza); IBZ (strutture); STUDIO BRUGNERA (impianti elettrici); TECNOHABITAT (idraulica)
superficie/gross surface: 420m² (edificio); 1.780m² (sistemazioni esterne)
importo opere/cost: 1,30M € IVA escl.
stato/phase: progetto di fattibilità tecnico-economica, progetto esecutivo
cronologia/timetable: 03.2025-11.2025 (PFTE); 02.2026-in corso (progetto esecutivo)


download PDF (it)
download PDF (en)
download PDF (fr)