via buccari 1
30171 venezia (Italia)
+39 041 419 03 37
info@gi-f.com

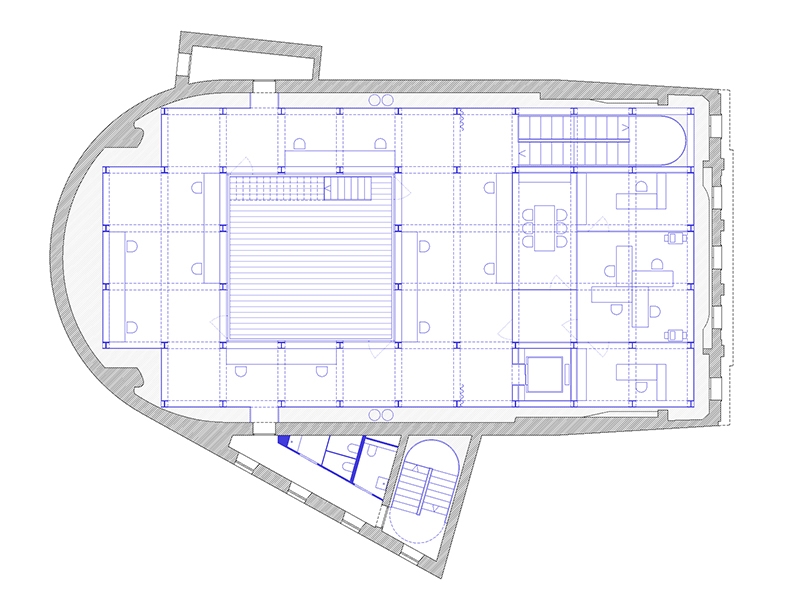
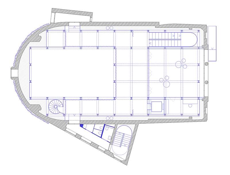
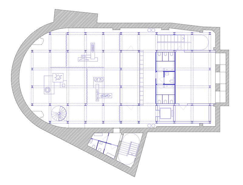
CENTRO PER LE ARTI E LE CULTURE CONTEMPORANEE
CENTRE FOR CONTEMPORARY ARTS


luogo/location: Vicenza (Italia) mappa/map
cliente/client: Fondazione Giuseppe Roi
consulenti/consultants: UBU (visuals)
superficie/gross surface: 1 560m²
importo opere/cost: 2,80M € IVA escl.
stato/phase: concorso internazionale di progettazione
cronologia/timetable: 07.2025-01.2026


download PDF (it)
download PDF (en)
download PDF (fr)