via buccari 1
30171 venezia (Italia)
+39 041 419 03 37
info@gi-f.com

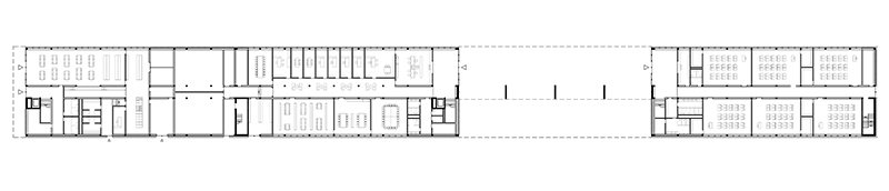
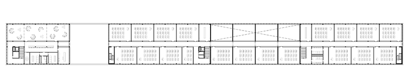
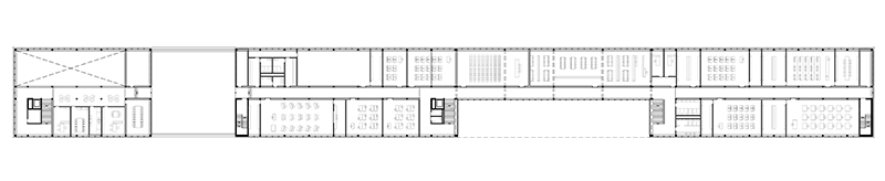
PLESSO SCOLASTICO CON PALESTRA E PISCINA
PRIMARY SCHOOL WITH GYMNASIUM AND SWIMMING-POOL


luogo/location: Nyon (Svizzera) mappa/map
cliente/client: Comune di Nyon
consulenti/consultants: Tajana & Partners (strutture)
superficie/gross surface: 11 500m²
importo opere/cost: 22,4M € IVA escl.
stato/phase: concorso internazionale
cronologia/timetable: 06.2013-10.2013


download PDF (it)
download PDF (en)
download PDF (fr)