via buccari 1
30171 venezia (Italia)
+39 041 419 03 37
info@gi-f.com

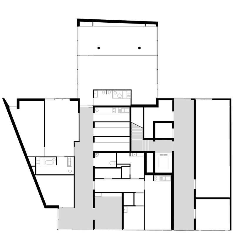
ALLOGGI SOCIALI E ASILO NIDO
SOCIAL HOUSING AND NURSERY SCHOOL


luogo/location: Parigi-12° arrondissement (Francia) mappa/map
cliente/client: Comune di Parigi; SIEMP
consulenti/consultants: AIC Ingénierie (strutture e impianti); Cabinet Cholley (computi)
superficie/gross surface: 1 010m² (alloggi sociali); 240m² (asilo nido)
importo opere/cost: 2,3M € IVA escl.
stato/phase: realizzato
cronologia progetto/design timetable: 11.2004-09.2005
cronologia lavori/worksite timetable: 01.2007-01.2009


download PDF (it)
download PDF (en)
download PDF (fr)