via buccari 1
30171 venezia (Italia)
+39 041 419 03 37
info@gi-f.com

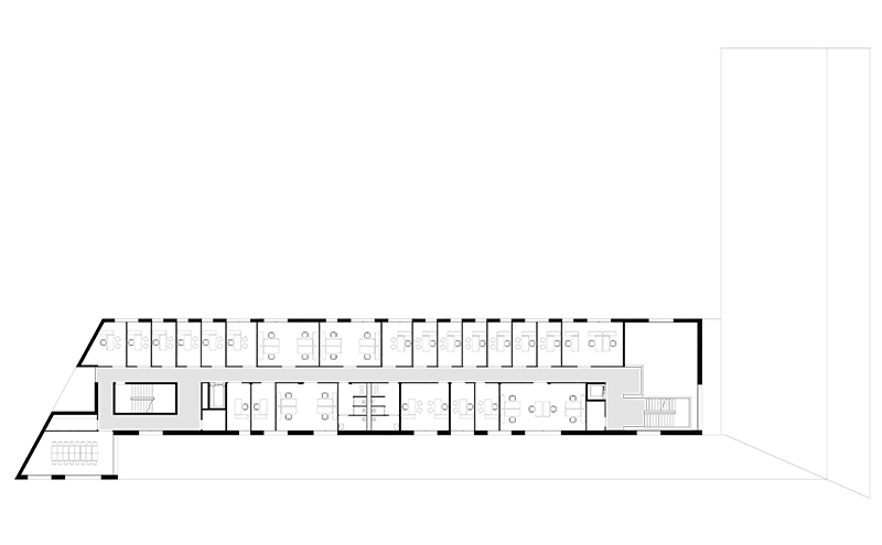
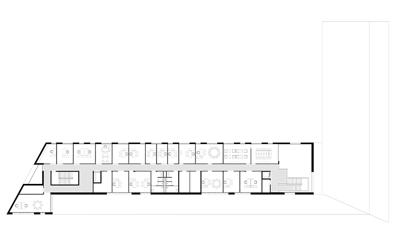
SEDE GENERALE DELLA CAMERA DI COMMERCIO E DELL'INDUSTRIA DELL'EURE
EURE CHAMBER OF COMMERCE AND INDUSTRY HEADQUARTER


luogo/location: Evreux (Francia) mappa/map
cliente/client: CCIE (Camera di Commercio e dell'Industria dell'Eure)
consulenti/consultants: IOSIS Centre-Ouest(strutture, impianti, ventilazione); ELIOTH (energie rinnovabili); GEOVISION (architettura del paesaggio); ECIB économistes (computi)
superficie/gross surface: 3 172m²
importo opere/cost: 6,1M € IVA escl.
stato/phase: realizzato
cronologia progetto/design timetable: 09.2008-03.2010
cronologia lavori/worksite timetable: 07.2010-12.2011
crediti foto/photo credits: Epaillard+Machado
premi/awards:1° PREMIO PREBAT 2009


download PDF (it)
download PDF (en)
download PDF (fr)