via buccari 1
30171 venezia (Italia)
+39 041 419 03 37
info@gi-f.com

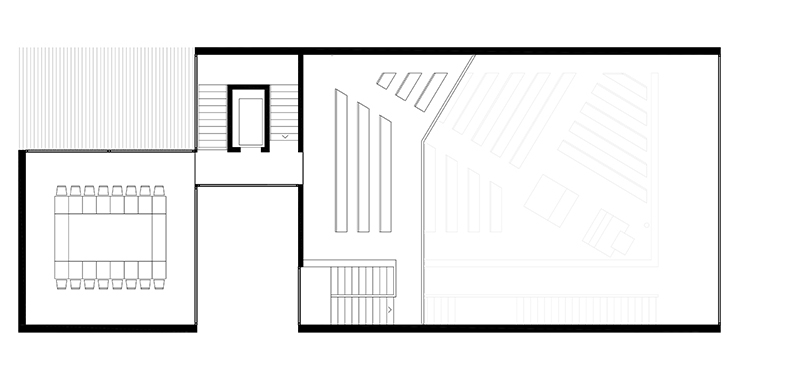
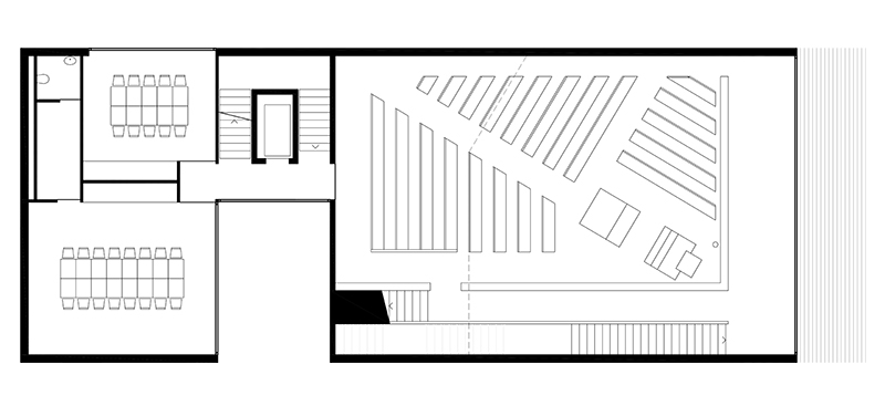
SINAGOGA EBRAICA CON BIBLIOTECA E FORESTERIA
JEWISH SYNAGOGUE WITH LIBRARY AND GUESTHOUSE


luogo/location: Potsdam (Germania) mappa/map
cliente/client: Land Brandenburg; Comunità Ebraica di Potsdam
consulenti/consultants: IOSIS Centre-Ouest (strutture e impianti)
superficie/gross surface: 4 800m²
importo opere/cost: 8,0M € IVA escl.
stato/phase: concorso a partecipazione ristretta
cronologia/timetable: 02.2009-04.2009
premi/awards: PROGETTO MENZIONATO


download PDF (it)
download PDF (en)
download PDF (fr)