via buccari 1
30171 venezia (Italia)
+39 041 419 03 37
info@gi-f.com

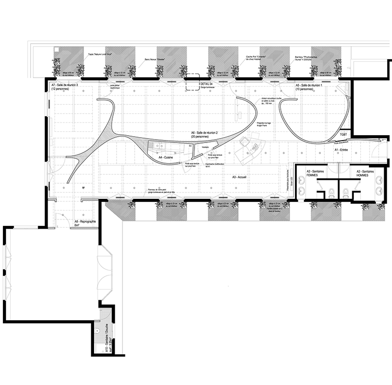
RISTRUTTURAZIONE INTERNA DELLA SEDE SOCIALE DI KNIGHT FRANK FRANCIA
KNIGHT FRANK FRANCE HEADQUARTER RENOVATION


luogo/location: Parigi-1° arrondissement (Francia) mappa/map
cliente/client: Knight Frank Francia
consulenti/consultants: Naud & Poux (architettura); AIC Ingénierie (impianti); Cabinet Cholley (computi)
superficie/gross surface: 220m²
importo opere/cost: 300K € IVA escl.
stato/phase: realizzato
cronologia progetto/design timetable: 01.2007-04.2007
cronologia lavori/worksite timetable: 05.2007-07.2007


download PDF (it)
download PDF (en)
download PDF (fr)