via buccari 1
30171 venezia (Italia)
+39 041 419 03 37
info@gi-f.com

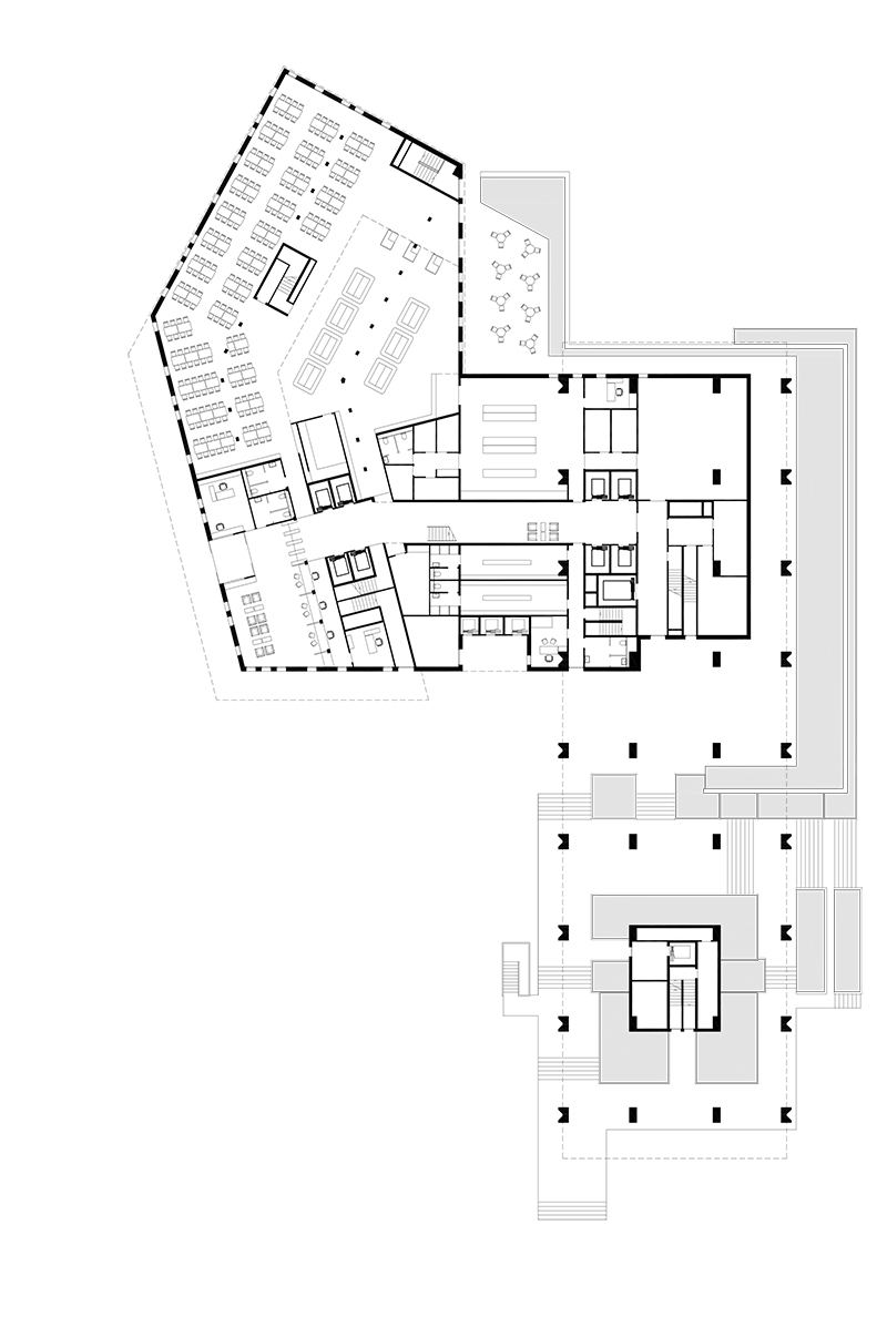
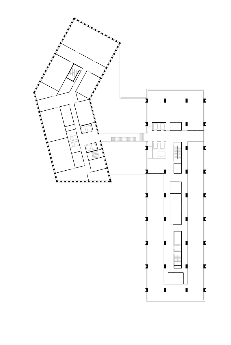
AMPLIAMENTO DI UN EDIFICIO PER UFFICI
ADMINISTRATIVE BUILDING EXTENSION


luogo/location: Ginevra (Svizzera) mappa/map
cliente/client: Comune di Ginevra; CCG di Ginevra
consulenti/consultants: AIIC Ingénierie (strutture)
superficie/gross surface: 9 500m²
importo opere/cost: 20,0M € IVA escl.
stato/phase: concorso internazionale
cronologia/timetable: 06.2010-10.2010


download PDF (it)
download PDF (en)
download PDF (fr)