via buccari 1
30171 venezia (Italia)
+39 041 419 03 37
info@gi-f.com

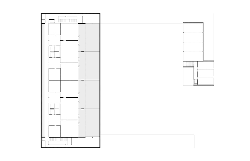
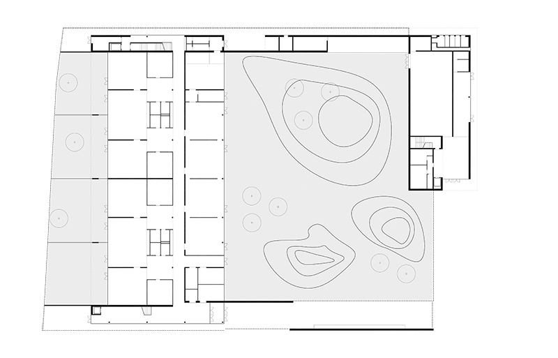
SCUOLA MATERNA E SALA COMUNALE POLIVALENTE
NURSERY SCHOOL WITH COMMUNITY CENTER


luogo/location: Lugano (Svizzera) mappa/map
cliente/client: Comune di Lugano
consulenti/consultants: AIIC Ingénierie (strutture e impianti)
superficie/gross surface: 3 900m²
importo opere/cost: 9,5M € IVA escl.
stato/phase: concorso internazionale di progettazione
cronologia/timetable: 05.2011-10.2011


download PDF (it)
download PDF (en)
download PDF (fr)